Local comercial para la renta en Av. 30 de Agosto

https://www.claudiajaramillo.com/web/image/product.template/2996/image_1920?unique=85b9a6c

Si tu marca está lista para dar el siguiente paso, este es el lugar donde debe estar.

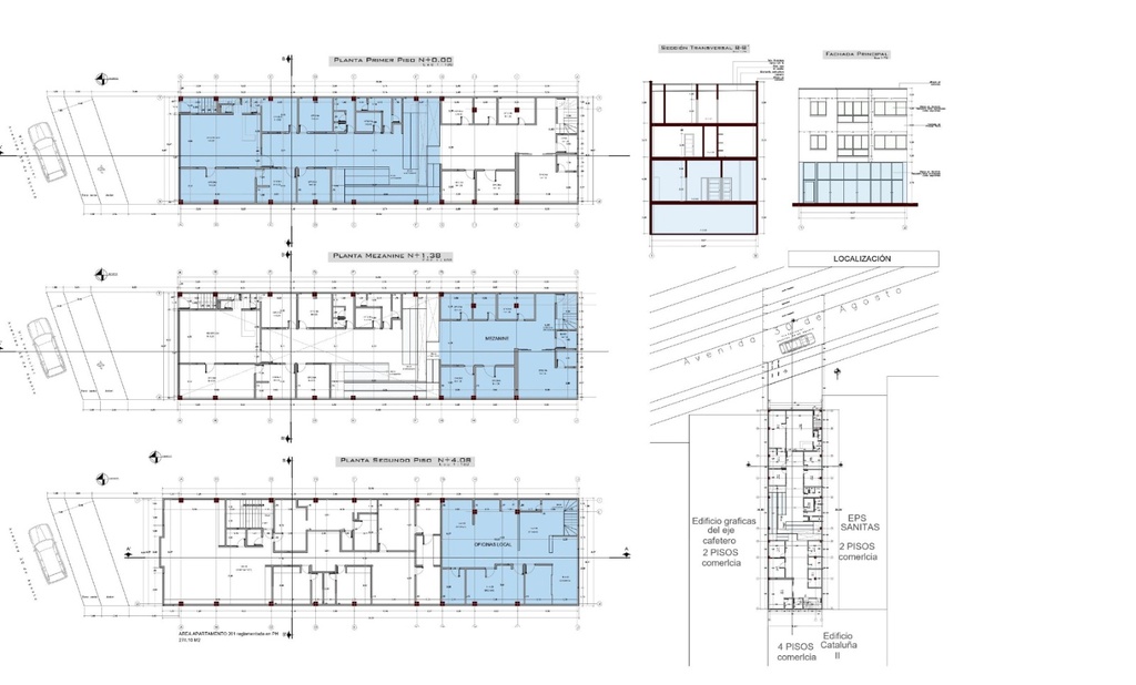
Sobre la Av. 30 de Agosto, uno de los corredores más estratégicos y transitados de Pereira, se encuentra este imponente local comercial diseñado para negocios que buscan visibilidad, posicionamiento y crecimiento real.

Con un área total de 710 m², distribuidos en 650 m² de área comercial y 60 m² de parqueaderos, este espacio de cuatro niveles ofrece amplitud y versatilidad para desarrollar conceptos a gran escala. Su ubicación lo integra a un entorno consolidado, rodeado de marcas reconocidas como Sura, Mazda y Renault, lo que garantiza flujo constante y alto impacto comercial.

Aquí no se trata solo de un espacio, sino de una oportunidad para posicionarse en una de las zonas más dinámicas de la ciudad.


Agenda tu visita y descubre el potencial de este espacio para tu negocio.

25.000.000,00 25000000.0 COP 25.000.000,00

25.000.000,00

Not Available For Sale

(0,00 / Unidades)
  • Operación
  • Estado
  • Tipo de Inmueble
  • Ciudad

Esta combinación no existe.

Operación: Arriendo
Estado: Usado
Tipo de Inmueble: Local Comercial
Ciudad: Pereira
Avatar Comercial

Alejandro Pineda Cardona

alejandro@claudiajaramillo.com

+57 310 4692341

Código inmueble: 1748

Equipo de Ventas CJ&Cia